Studio

Réservez votre studio

I.a-RDC-Plan-studio-photo-video
I.a-RDC-Plan-studio-photo-video

I.b-RDC-Plan-studio-photo-mur-blanc-vue-arrière-batiment
I.b-RDC-Plan-studio-photo-mur-blanc-vue-arrière-batiment

I.c-RDC-Plan-studio-photo-tissu-noir-vue-arrière-batiment
I.c-RDC-Plan-studio-photo-tissu-noir-vue-arrière-batiment

I.d-RDC-Plan-studio-photo-tissu-noir-vue-arrière-batiment-greenkey-tissu-professeur
I.d-RDC-Plan-studio-photo-tissu-noir-vue-arrière-batiment-greenkey-tissu-professeur
I.e-RDC-Plan-studio-photo-tissu-noir-vue-arrière-batiment-greenkey-tissu
I.e-RDC-Plan-studio-photo-tissu-noir-vue-arrière-batiment-greenkey-tissu
I.g-RDC-Plan-studio-photo-vue-avant-batiment-greenkey-tissu-coté porte-cochère-rue
I.g-RDC-Plan-studio-photo-vue-avant-batiment-greenkey-tissu-coté porte-cochère-rue

I.g-RDC-Plan-studio-photo-vue-avant-batiment-greenkey-tissu-coté porte-cochère-rue
I.g-RDC-Plan-studio-photo-vue-avant-batiment-greenkey-tissu-coté porte-cochère-rue
I.i-RDC-Plan-studio-photo-vue-avant-batiment-fond-noir-coté porte-cochère-rue
I.i-RDC-Plan-studio-photo-vue-avant-batiment-fond-noir-coté porte-cochère-rue
II.a-ETAGE1-Plan-studio-post-production-cabine-son
II.a-ETAGE1-Plan-studio-post-production-cabine-son
II.a-ETAGE1-Plan-studio-post-production-cabine-son
II.a-ETAGE1-Plan-studio-post-production-cabine-son
II.b-ETAGE1-Plan-studio-post-production-cabine-son-vue-arrière
II.b-ETAGE1-Plan-studio-post-production-cabine-son-vue-arrière
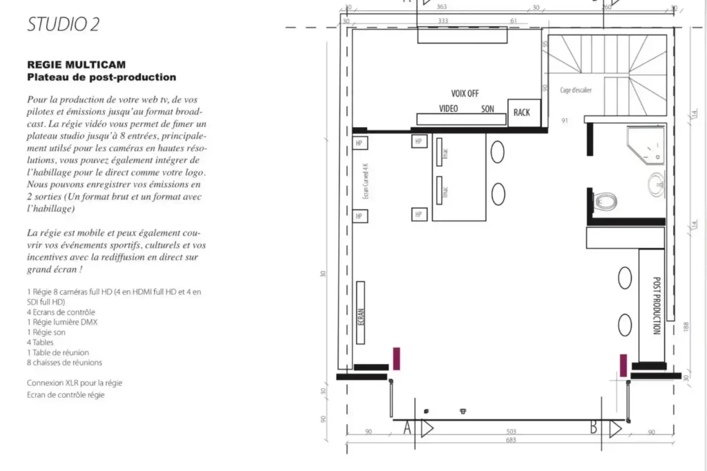
II.c-ETAGE1-Plan-studio-post-production-regie-centre-espace
II.c-ETAGE1-Plan-studio-post-production-regie-centre-espace
II.d-ETAGE-1-cabine-son
II.d-ETAGE-1-cabine-son

III.a-ETAGE2-Espace-polyvalent-appartement
III.a-ETAGE2-Espace-polyvalent-appartement